Eichstätt
Oberbayern
Raum für Leben.
In zentraler Lage von Eichstätt entsteht durch den Ausbau des Dachgeschosses eines bestehenden Studentenwohnheims eine seltene Investitionschance: vier kompakte Apartments – gemeinsam zu erwerben.
Stabilität durch Bedarf.
Eichstätt ist ein etablierter Hochschulstandort in Süddeutschland. Die Stadt verzeichnet seit Jahren eine stabile Nachfrage nach studentischem Wohnraum, während kleine Einheiten knapp sind. Diese Kombination sorgt für dauerhaft lukrative Vermietungsmöglichkeiten und eine gesicherte Renditeperspektive.
Wertschöpfung im Bestand.
Der Ausbau innerhalb einer bestehenden Anlage minimiert das Instandhaltungsrisiko und schafft eine nachhaltige Grundlage für stabiles Ertragspotenzial. Kapitalanleger profitieren hier von vier separaten Mietströmen in einem Paket – eine clevere Aufteilung mit Zukunftsperspektive.
Voraussichtliche Fertigstellung Ende November 2025.
Fakten
- Adresse: Schottenau 46, 85072 Eichstätt
- Wohneinheiten: 4
- Gesamtwohnfläche: ca. 157 m²
- Geschoss: Dachgeschoss (Ausbau in bestehendem Studentenwohnheim)
- Energieversorgung: Gaszentralheizung
- Baujahr Bestand: 1985
- Ausbau: 2025
Impressionen
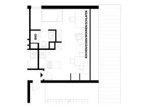
Grundrisse
Die vier Apartments sind jeweils als 1-Zimmer-Wohnungen mit Bad und Abstellraum konzipiert.
Wohnflächen zwischen ca. 34 und 41 m² schaffen kompakte, funktionale Einheiten für Studenten. Große Dachflächenfenster und Gauben sorgen für viel Licht und eine angenehme Wohnatmosphäre.
Die klare Aufteilung ermöglicht es dem Eigentümer, vier eigenständige Einheiten separat zu vermieten – mit optimaler Flächeneffizienz und stabiler Nachfrage.
Infomaterial
Infomaterial
Lage
Oberbayern
Der Regierungsbezirk Oberbayern liegt im Südosten Bayerns und ist mit einer Fläche von 17.530 Quadratkilometern der größte bayerische Bezirk sowie mit rund 4,8 Millionen Einwohner auch der bevölkerungsreichste. Hier sind nicht nur der Königssee als tiefster See Deutschlands und die Zugspitze als höchster Berg Deutschlands zu finden, sondern auch die Hallertau, das größte zusammenhängende Hopfenanbaugebiet der Welt.
Eichstätt
Mit der Katholischen Universität Eichstätt-Ingolstadt verfügt die Stadt über einen gefestigten Hochschulstandort. Rund 5.000 Studenten prägen das Stadtbild und sichern eine kontinuierliche Nachfrage nach kleinen Wohneinheiten. Dazu kommen Arbeitgeber aus Bildung, Verwaltung und Tourismus, die für zusätzliche Stabilität sorgen. Für Investoren bedeutet das: ein Standort mit klar definierter Zielgruppe und verlässlicher Vermietbarkeit.
Schottenau 46
Die Mikrolage verbindet Ruhe und Nähe zum Zentrum. Einkaufsmöglichkeiten, Ärzte, Cafés und Freizeitangebote sind in wenigen Minuten erreichbar, die Universität liegt ebenfalls in komfortabler Distanz. Gute ÖPNV-Anbindungen schaffen zusätzliche Flexibilität. Für Studenten ist die Lage dadurch besonders attraktiv – und für Kapitalanleger eine Garantie für langfristige Nachfrage.
Vertrauen Sie auf Erfahrung, Qualität und echte Werte.
CIC Invest – Immobilien mit Zukunft. Für Menschen mit Anspruch.
Sie haben Fragen zu unserem Leistungsportfolio?
Möchten Sie innovative Investitionsmöglichkeiten kennenlernen – oder beabsichtigen Sie, mit uns zusammenzuarbeiten?
Dann sprechen Sie uns gerne direkt an.
CIC Invest GmbH
Franz-von-Taxis-Ring 32
 93049 Regensburg
- +49 941 83097458
- contact@cic-invest.com
 
								




 
								 
								 
				