Pentling
Upper Palatinate
Space for living.
Just outside Regensburg, a modern apartment building with eight residential units is being built in a quiet location. The basis for this is a building from the 1970s, which is being brought up to date as part of a comprehensive renovation and supplemented with a contemporary architectural extension.
Sustainability meets living comfort.
Generous windows, well-designed floor plans, and private outdoor areas—terraces, balconies, or roof terraces—characterize the living experience. An efficient heat pump in conjunction with the KfW 55 standard ensures permanently low energy costs and guarantees sustainable living with stable value.
Diversity for all situations.
With living spaces ranging from 54 to 84 m², the building offers flexible concepts for a wide variety of living situations. Whether a compact apartment or a spacious attic apartment, each unit is designed to meet individual needs and allow room for personal development.
Voraussichtliche Fertigstellung im Herbst 2027.
Facts
- Address: Dahlienweg 6, 93080 Pentling
- Residential units: 8
- Total living space: approx. 554 m²
- Land: approx. 927 m²
- Floors: 3 – ground floor + upper floor + attic
- Energy efficiency: KfW 55 standard
- Heating: Heat pump
- Parking spaces: 10 – 8 outdoor + 2 garage parking spaces
- Year of construction: 1975
- Renovation & expansion: 2026
Impressions
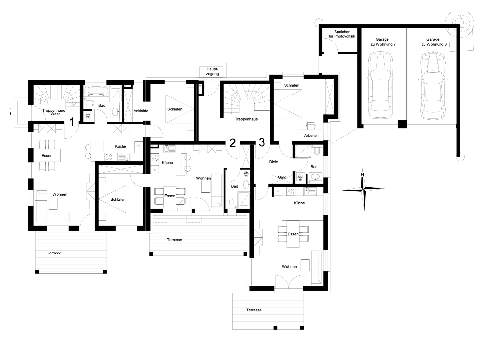
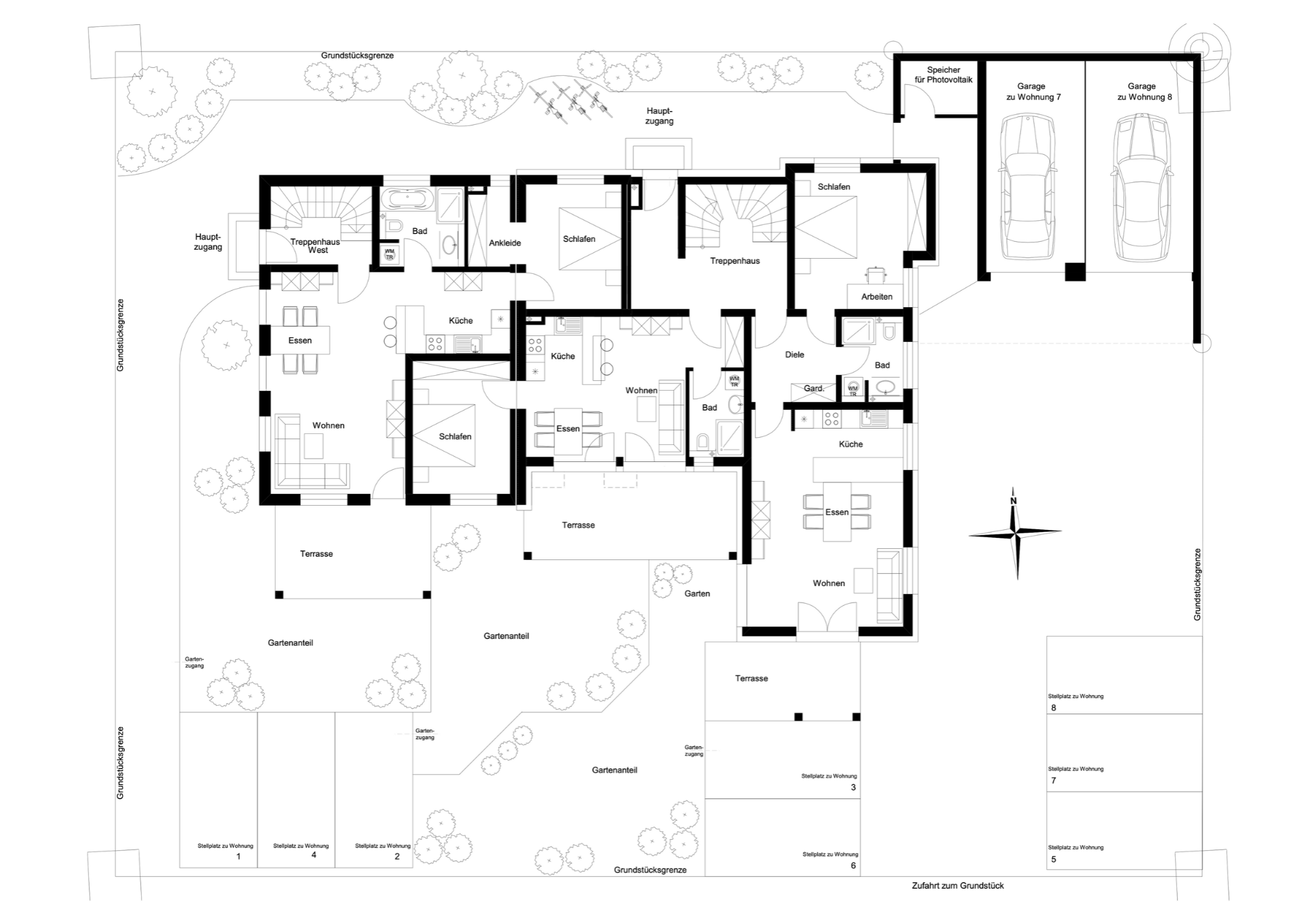
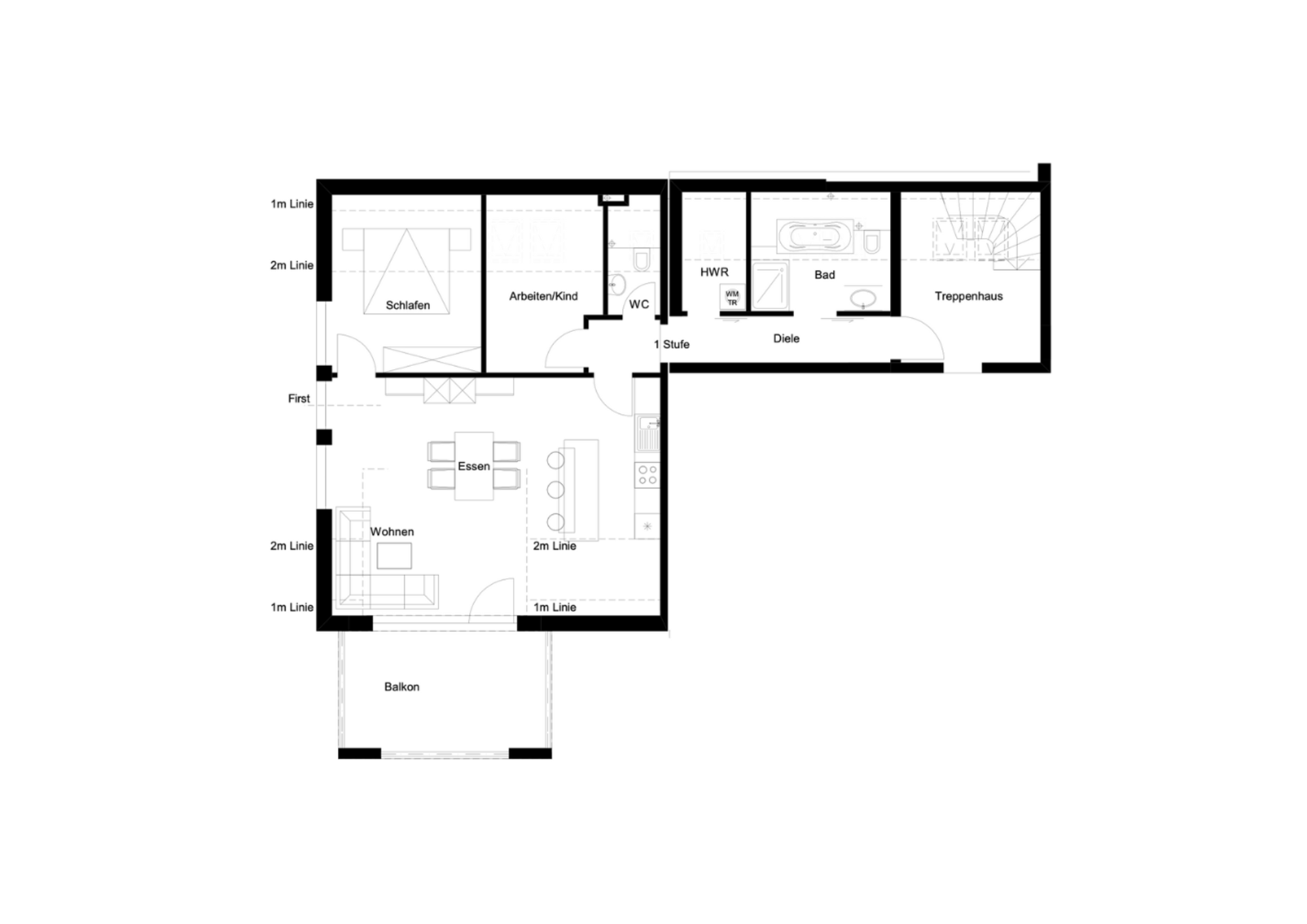
Floor plans
All eight units are bright, functionally designed, and equipped to a high standard. Each apartment has a private outdoor area.
The ground floor apartments each have a terrace with an adjoining garden area.
Balconies on the upper floors provide additional living comfort, while the two attic apartments with open floor plans and extended open spaces add special accents.
Infomaterial
Infomaterial
Location
Upper Palatinate
The Upper Palatinate in eastern Bavaria has a population of around 1.1 million and combines natural beauty with economic strength. Gentle hills, rivers, and forests characterize the landscape and make the region a place with a high quality of life. At the same time, the Upper Palatinate is one of Germany's most economically successful regions: thanks to strong industry and innovative small and medium-sized enterprises, the gross domestic product per capita is well above the national average.
Another special feature is how deeply rooted the people are in their homeland—according to surveys, the Upper Palatinate feel a stronger connection to their region than most other Germans. In addition, the Upper Palatinate is considered the geographical center of Europe and thus the heart of a continent where tradition and the future come together in a special way.
Pentling
Located just a few minutes south of Regensburg, the "northernmost city in Italy" with its beautiful medieval old town, Pentling combines the advantages of rural living with proximity to the city. The town, with a population of around 7,000, is growing, family-friendly, and quiet—yet at the same time, it benefits directly from the cultural diversity and economic dynamism of the university city of Regensburg, which has been a UNESCO World Heritage Site since 2006. In addition to major employers such as BMW, Continental, and Infineon, the university hospital also strengthens the region. There are fast connections via the A93 and B16 motorways, and Regensburg's main train station is about ten minutes away by car.
Dahlienweg 6
This apartment building is located on a quiet residential street in the south of Pentling. Shopping facilities, schools, kindergartens, doctors, and pharmacies are within easy reach. Buses that go directly to Regensburg city center stop within walking distance. The surrounding countryside with its fields, meadows, and idyllic bike paths offers plenty of opportunities for recreation and leisure, and the proximity to the Danube opens up a wide range of possibilities: walks along the riverbank, bike paths along the river, and water sports activities enhance the quality of life. The location combines urban accessibility with the tranquility of living in the countryside—an ideal place for people who appreciate both.
You are currently viewing a placeholder content from Google Maps. To access the actual content, click the button below. Please note that doing so will share data with third-party providers.
More InformationPut your trust in experience, quality, and genuine values.
CIC Invest – Real estate with a future. For people with high standards.
Do you have questions about our service portfolio?
Would you like to learn about innovative investment opportunities—or are you interested in working with us?
Then please feel free to contact us directly.
CIC Invest GmbH
Franz-von-Taxis-Ring 32
93049 Regensburg
- +49 941 83097458
- contact@cic-invest.com












